Сдача в аренду 2-этажного коттеджа на Сокольниках в стиле минимализм
Современная архитектура в стиле минимализм
SPA-зона, бассейн, панорамные окна
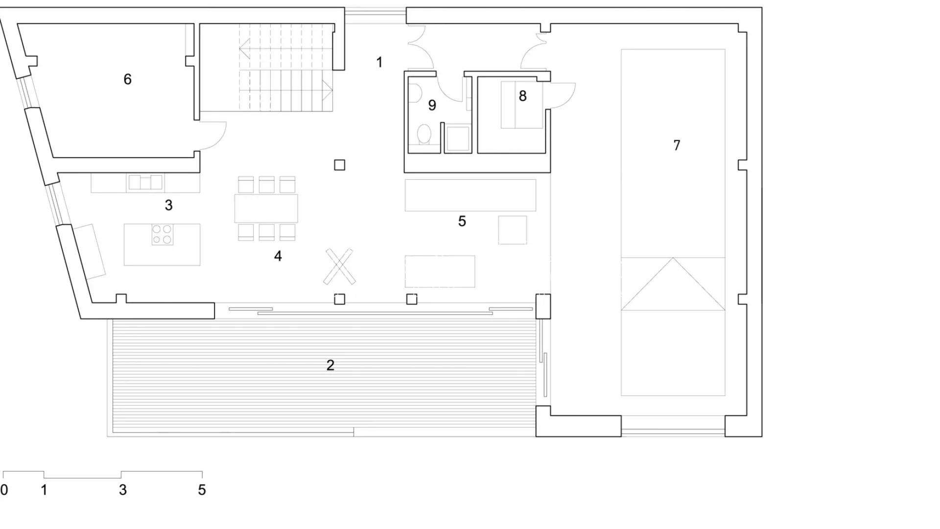
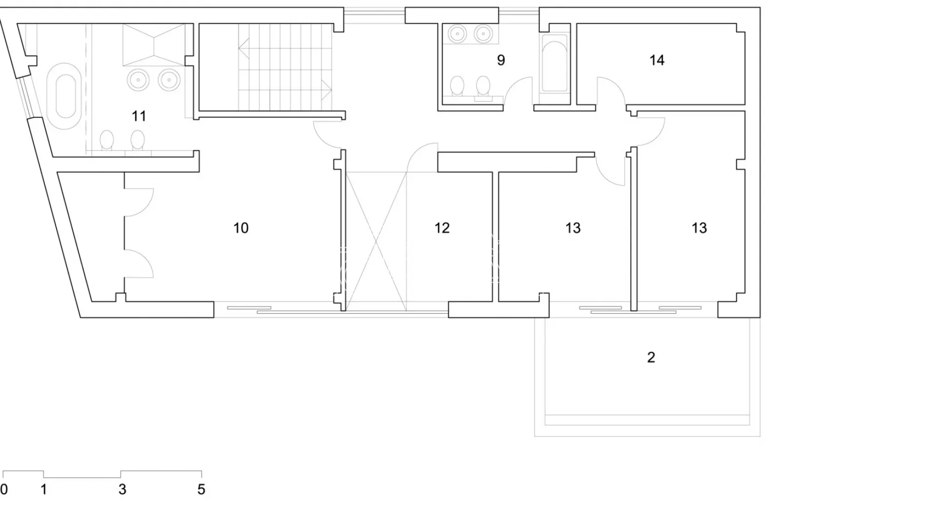
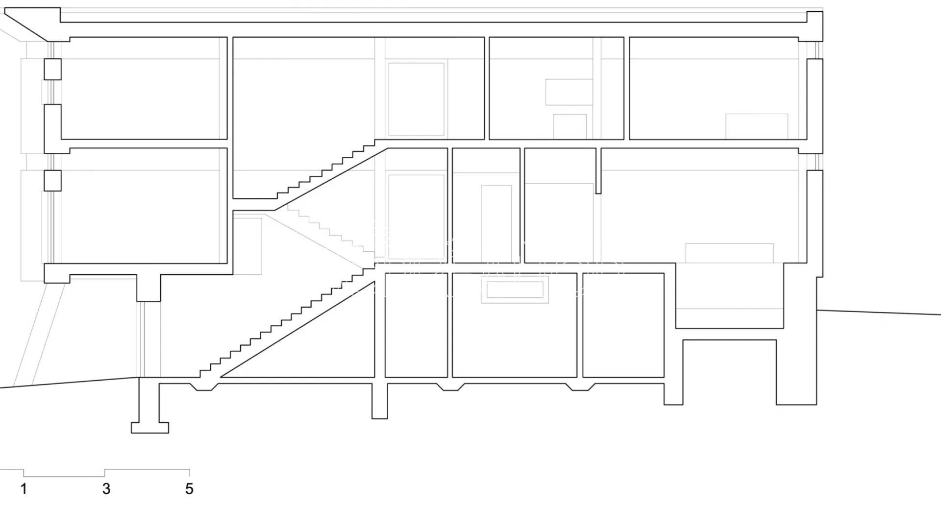
Общая площадь 440м2
Код объекта 31032
Авторский проэкт известного архитектора Олега Дроздова – это гармоничное сочетание минимализма, света и природы. Дом расположен в престижном районе Харькова - Сокольниках, в зеленой парковой зоне Центрального парка Архитектура и дизайн – в стиле минимализм: сочетание грубого бетона и стекла, камня и натурального дерева создает эффектную эстетику. Расположенный на участке с ландшафтными перепадами дом спланирован так, что его открытые части закрыты от улицы, в то же время открытые панорамные окна смотрят на парк. Технические помещения дома обозначены узкой полосой остекления, обеспечивающей 360-градусное освещение внутреннего пространства солнечными лучами, проникающими в здание по разным направлениям в зависимости от времени суток. Похоже, что этот дом управляет временем. Общая площадь дома: 440 кв. Участок: 20 соток с ландшафтным дизайном и автополивом Гараж: на 2 автомобиля + технические помещения в цоколе Планирование: 1-й этаж: • современная кухня; • просторная столовая и гостиная open-space; • панорамные раздвижные оконные системы, сочетающие пространство с террасой и садом; • бассейн с сауной, расположенный на этом же уровне, благодаря архитектурному решению становится частью интерьера, создавая уникальную атмосферу пространства и отдыха. 2-й этаж: • мастер-спальня с собственной просторной и светлой ванной и гардеробной; • две дополнительные спальни с большой общей террасой и санузлом; • просторный кабинет-библиотека. Также в доме есть • оборудованный спортзал Technogym; • котельная с двумя котлами: газовым и дровяным; • прачечная (прачечная); • гараж на два автомобиля. Здание построено с применением современных технологий по теплосбережению и премиальных отделочных материалов. Особенности участка: Профессиональное озеленение с декоративными деревьями и кустарниками. Современная беседка для отдыха Уютное пространство для семьи и приема гостей Локация: Коттеджный поселок Сокольники – в самом центре Харькова, рядом с Центральным парком. Удобный асфальтированный подъезд, все центральные коммуникации. Уникальность: Этот дом – идеальное сочетание архитектурной эстетики, функциональности и комфорта для современной семьи.
Читать далее

Заявка
Подбор объекта
Договор на обслуживание
Просмотр объекта
Проверка документов
Оформление предварительного договора
Подготовка документов к сделке
Оформление купли-продажи объекта