

Продам дом в поселке Форест
Под чистовую отделку
Городские коммуникации
Общая площадь 255м2
Код объекта 19994
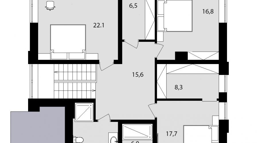
Закрытый коттеджный поселок Форест, лес, природа, городская инфраструктура в шаговой доступности. Лучшее предложение в лесопарке по цене, расположению, планировке и качеству строительства! Главные преимущества дома: 1) Расположение - лесопарк, охраняемый коттеджный поселок, чистейший воздух, но городская инфраструктура в 5 минутах езды 2) Экологичные, проверенные материалы - керамический кирпич 3) Энергоэффективность - 15 см утепление стен, 20 см утепление кровли, самые теплые окна на рынке. 4) Удобная планировка с огромной дневной зоной, четырьмя спальнями (одна из которых на первом этаже), кабинетом и подсобными помещениями (см. схему) Высота этажа 3,2м 5) Современная архитектура 6) Отделка фасада клинкером и термообработанной доской 7) Просторный приватизированный участок 10 соток 8) Прекрасный вид на лес 360 градусов 9) Городские коммуникации 10) Цена!!! Без комиссии! 11) Базовое озеленение участка с автоматическим поливом Дом в настоящий момент имеет повреждения, но на момент сделки сдаётся полностью отремонтированный с внутренней штукатуркой, под чистовую отделку, с газоном и автополивом. Отопление- тепловой насос. Территория коттеджного посёлка Форест находится под круглосуточной охраной, работает сервисная организация, которая следит за уборкой территории, вывозом мусора, и обслуживанием коммуникаций. В непосредственной близости от таунхаусов строится частный детский сад и комплекс отдыха с бассейном. Коттеджный посёлок Форест находится в самом центре лесопарка в тени роскошных дубов, в то же время до делового центра Харькова подать рукой: на расстоянии 10 минут езды расположены спорткомплекс Тетра, Сумской рынок и стадион Пионер, школа Бойко и университетский лицей.
Читать далее
Заявка
Подбор объекта
Договор на обслуживание
Просмотр объекта
Проверка документов
Оформление предварительного договора
Подготовка документов к сделке
Оформление купли-продажи объекта