Продаж 2-поверх. будинку на вул. Афанасівська

Просмотров: 42 Найти на карте
Дома на Холодной и Лысой горе Дома Харьков

по состоянию на 06/11/2025

Понравился объект? Оцените его

Продаж 2-поверх. будинку у районі Холодної гори

Збудований з якісних матеріалів, є сигналізація, має домофон та відеофон

Зручне розташування

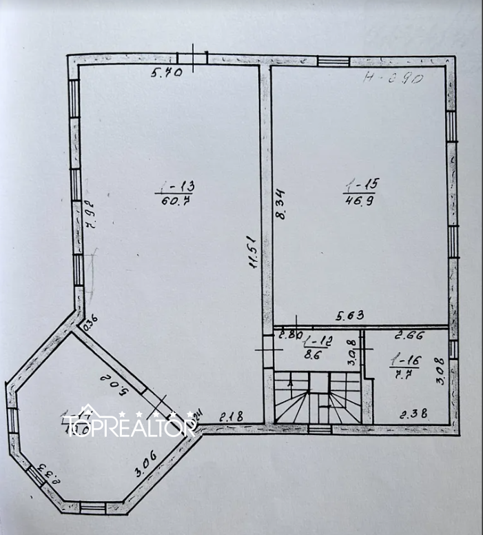
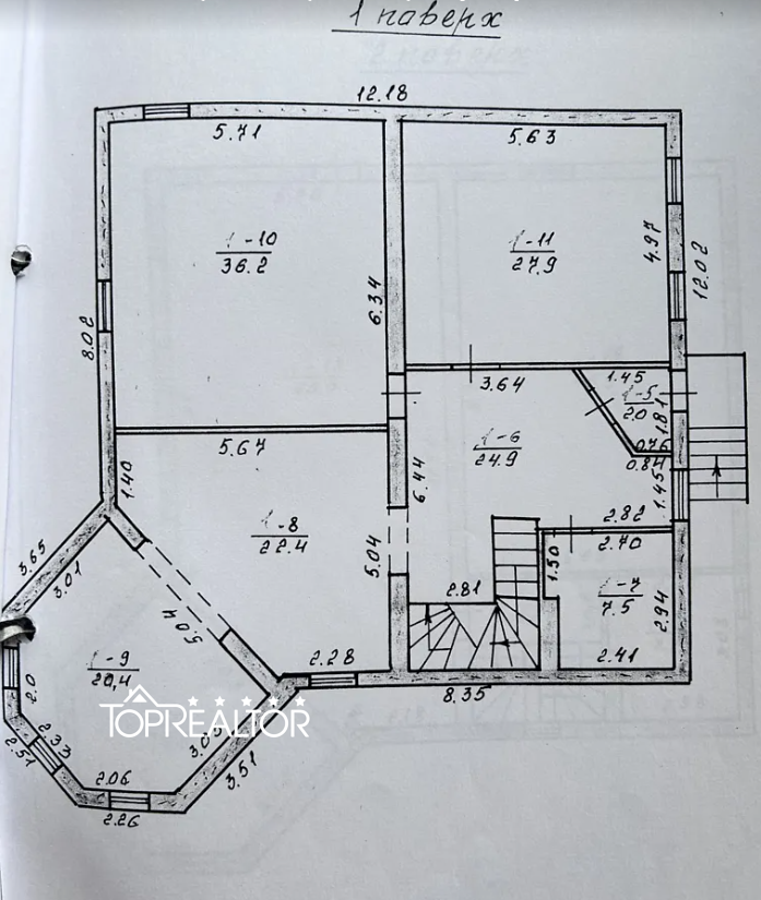
Общая площадь 346м2

Код объекта 31060

  • # 7 соток
  • 346 м2
  • 2
  • 5
Описание объекта

Просторий двоповерховий будинок загальною площею 346 м² (житлова – 190,6 м², кухня – 20,6 м²) розташований на ділянці 7,3 сотки. Знаходиться на червоній лінії, поруч метро Холодна Гора (4 хвилини пішки), зручно доїхати громадським транспортом.

Характеристики будинку:
8 кімнат, серед них 5 спалень. 2 санвузли
Перекриття – залізобетонні плити
Дах – рубероїдна покрівля
Висота стель – 3 м
Підвал із опаленням
Підведено 380 В

Комунікації та зручності:
Центральний водопровід
Газове опалення
Підігрів води: бойлер, двоконтурний котел, комбінований
Домофон, відеодомофон, сигналізація
Відеоспостереження по периметру, броньовані двері

Оздоблення та подвір’я:
Підлога: керамічна плитка, натуральний камінь, лінолеум
Подвір’я викладене натуральним каменем
Встановлені автоматичні ворота
Будинок збудований із якісних матеріалів, доглянутий, готовий до заселення.



Просторный двухэтажный дом общей площадью 346 м² (жилая – 190,6 м², кухня – 20,6 м²) расположен на участке 7,3 сотки. Находится на красной линии, рядом метро Холодная Гора (4 минуты пешком), удобно доехать до общественного транспорта.

Характеристики дома:
8 комнат, в том числе 5 спален. 2 санузла
Перекрытие – железобетонные плиты
Крыша – рубероидная кровля
Высота потолков – 3 м
Подвал с отоплением
Подведено 380 В

Коммуникации и удобства:
Центральный водопровод
Газовое отопление
Подогрев воды: бойлер, двухконтурный котел, комбинированный
Домофон, видеодомофон, сигнализация
Видеонаблюдение по периметру, бронированная дверь

Отделка и подворье:
Полы: керамическая плитка, натуральный камень, линолеум
Двор выложен натуральным камнем
Установлены автоматические ворота
Дом построен из качественных материалов, ухожен, готов к заселению.



Читать далее
  • Охраняемая территория
  • Видеонаблюдение
  • Охранная сигнализация
  • Газовое отопление
  • С подвалом
  • Кабельное TV
  • Рядом станция метро
  • Рядом автомойка
  • Школа в пешеходной доступности
  • Рядом детский сад
Ваш агент
Виталий Викторович Виталий Викторович | Toprealtor
Оставить сообщение
Неправильно заполненное поле
Неправильно заполненное поле
Неправильно заполненное поле
Неправильно заполненное поле
Похожие объекты

как мы работаем

telephone

Заявка

question

Подбор объекта

dog

Договор на обслуживание

Просмотр объекта

doc

Проверка документов

dogovor

Оформление предварительного договора

document

Подготовка документов к сделке

money

Оформление купли-продажи объекта

Схемы коттеджных поселков