Продажа комлпекса нежилых помещений на Клочковской
Своя закрытая территория, на въезде контрольно-пропускной пункт
Городские коммуникации
Общая площадь 1347м2
Код объекта 31155
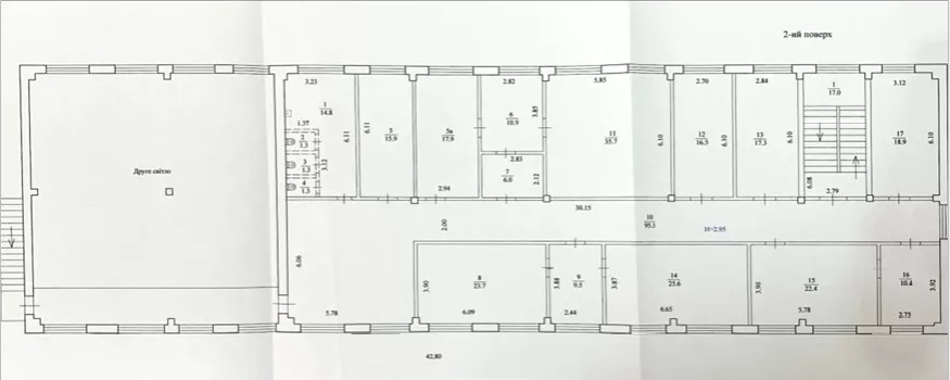
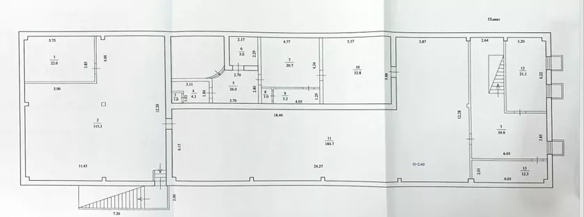
Коммерческий комплекс на ул. Клочковской | 50 кВт | Закрытая территория Продам комплекс нежилых помещений с собственной территорией и отличной логистикой. Идеально под сервисный центр, производственно-складской комплекс, IT-хаб или арендный бизнес. Локация: - ул. Клочковская - удобный выезд на окружную дорогу - быстрый доступ к основным транспортным узлам Основные преимущества: - закрытая территория - контрольно-пропускной пункт - просторная парковка - возможность расширения и строительства дополнительных помещений Коммуникации и мощности: - все городские коммуникации - электроснабжение: 50 кВт - отопление: электрический котёл 90 кВт Планировка комплекса: Подвальный уровень: - 7 подсобных помещений - душевая - сауна - бассейн Подходят под укрытие или вспомогательные нужды 2 этаж: - 24 кабинета - актовый зал - санузлы Также подойдёт под: - офисный центр - учебный или образовательный проект - медицинский центр / реабилитация - склад + офис Ключевые преимущества: - готовая административная инфраструктура - высокая энергообеспеченность - безопасность (закрытая территория + КПП) - гибкость использования и масштабирования Звоните — предоставим планировки и детали. Объекты такого формата с хорошей логистикой быстро находят покупателя!
Читать далее
Заявка
Подбор объекта
Договор на обслуживание
Просмотр объекта
Проверка документов
Оформление предварительного договора
Подготовка документов к сделке
Оформление купли-продажи объекта