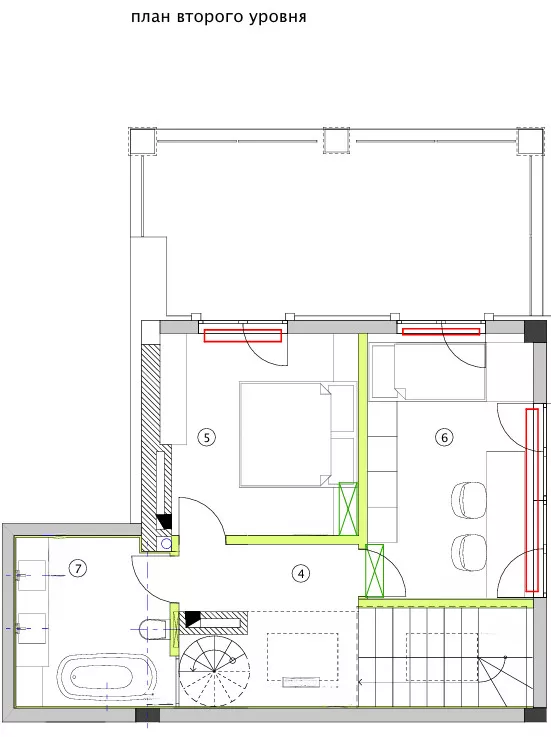
\r\n\r\nРідкісна пропозиція в одному з найкрасивіших ЖК міста.\r\n\r\nЗагальна площа квартири – 126 м².\r\n\r\nтераса 20 м² з видом на лісопарк\r\n\r\nЦе квартира, яку можна доробити під себе, при цьому найскладніші та найдорожчі роботи вже виконані.\r\n\r\nПланування (дуже зручне та рідкісне):\r\n1 поверх - 65 м²\r\nпростора вітальня-студія\r\nгостьовий санвузол\r\n\r\n2 поверх – 39,5 м²\r\nмайстер-спальня+ дитяча кімната\r\nвихід на терасу 20 м2\r\n\r\n3 рівень – кабінет 22,9 м²\r\nдитяча кімната / кабінет / приватна зона\r\n\r\nІдеальний формат для сім\'ї або тих, хто хоче відчуття вдома, але в квартирі.\r\n\r\nЩо вже зроблено (економія десятків тисяч доларів):\r\nВиконано все чорнове оздоблення\r\nВстановлено дверні коробки та двері\r\nГотовий санвузол на 1-му поверсі (укладена плитка та всі комунікації під сантехніку)\r\nПовністю розлучена електрика\r\nВстановлено кондиціонери Mitsubishi Electric\r\nПідготовлено металеву основу під чистові сходи.\r\nАвтономне опалення\r\n\r\nФактично — залишилося чистове оздоблення під ваш дизайн.\r\n\r\nПро будинок:\r\nбудинок дуже теплий та якісний\r\nзбудований з керамічних блоків\r\nфасад утеплений базальтовою ватою (10 см)\r\nпанорамні вікна з видом на лісопарк\r\n\r\nТакі види у Харкові трапляються рідко.\r\n\r\nЧому це сильний варіант на ринку?:\r\nпентхауси у цьому ЖК продаються рідко\r\nє тераса\r\nвже зроблено великий обсяг робіт\r\nчудове планування без переплат за зайві метри\r\nпідходить під преміальний інтер\'єрний проект"/>
Продаж 2-ярусного пентхаусу в ЖК «Фелічіта»
Чистове оздоблення під ваш дизайн
Приголомшливий вид на Лісопарк
Загальна площа 126м2
Код об'єкта 31140
Ексклюзив: 2-ярусний пентхаус у ЖК “Felicita”, будинок “Флоренція” Пропонуємо до вашої уваги пентхаус з терасою і приголомшливим видом на ліс | ЖК «Felicita» | Будинок "Флоренція" Рідкісна пропозиція в одному з найкрасивіших ЖК міста. Загальна площа квартири – 126 м². тераса 20 м² з видом на лісопарк Це квартира, яку можна доробити під себе, при цьому найскладніші та найдорожчі роботи вже виконані. Планування (дуже зручне та рідкісне): 1 поверх - 65 м² простора вітальня-студія гостьовий санвузол 2 поверх – 39,5 м² майстер-спальня+ дитяча кімната вихід на терасу 20 м2 3 рівень – кабінет 22,9 м² дитяча кімната / кабінет / приватна зона Ідеальний формат для сім'ї або тих, хто хоче відчуття вдома, але в квартирі. Що вже зроблено (економія десятків тисяч доларів): Виконано все чорнове оздоблення Встановлено дверні коробки та двері Готовий санвузол на 1-му поверсі (укладена плитка та всі комунікації під сантехніку) Повністю розлучена електрика Встановлено кондиціонери Mitsubishi Electric Підготовлено металеву основу під чистові сходи. Автономне опалення Фактично — залишилося чистове оздоблення під ваш дизайн. Про будинок: будинок дуже теплий та якісний збудований з керамічних блоків фасад утеплений базальтовою ватою (10 см) панорамні вікна з видом на лісопарк Такі види у Харкові трапляються рідко. Чому це сильний варіант на ринку?: пентхауси у цьому ЖК продаються рідко є тераса вже зроблено великий обсяг робіт чудове планування без переплат за зайві метри підходить під преміальний інтер'єрний проект
Читати далі
Заявка
Підбір об'єкта
Договір на обслуговування
Перегляд об'єкта
Перевірка документів
Оформлення попереднього договору
Підготовка документів до угоди
Оформлення купівлі-продажу об'єкта