3-кімнатна квартира в ЖК Сокольники
З дизайнерським ремонтом і меблями
Просторе і світле житло в центрі
Загальна площа 115м2
Код об'єкта 30595
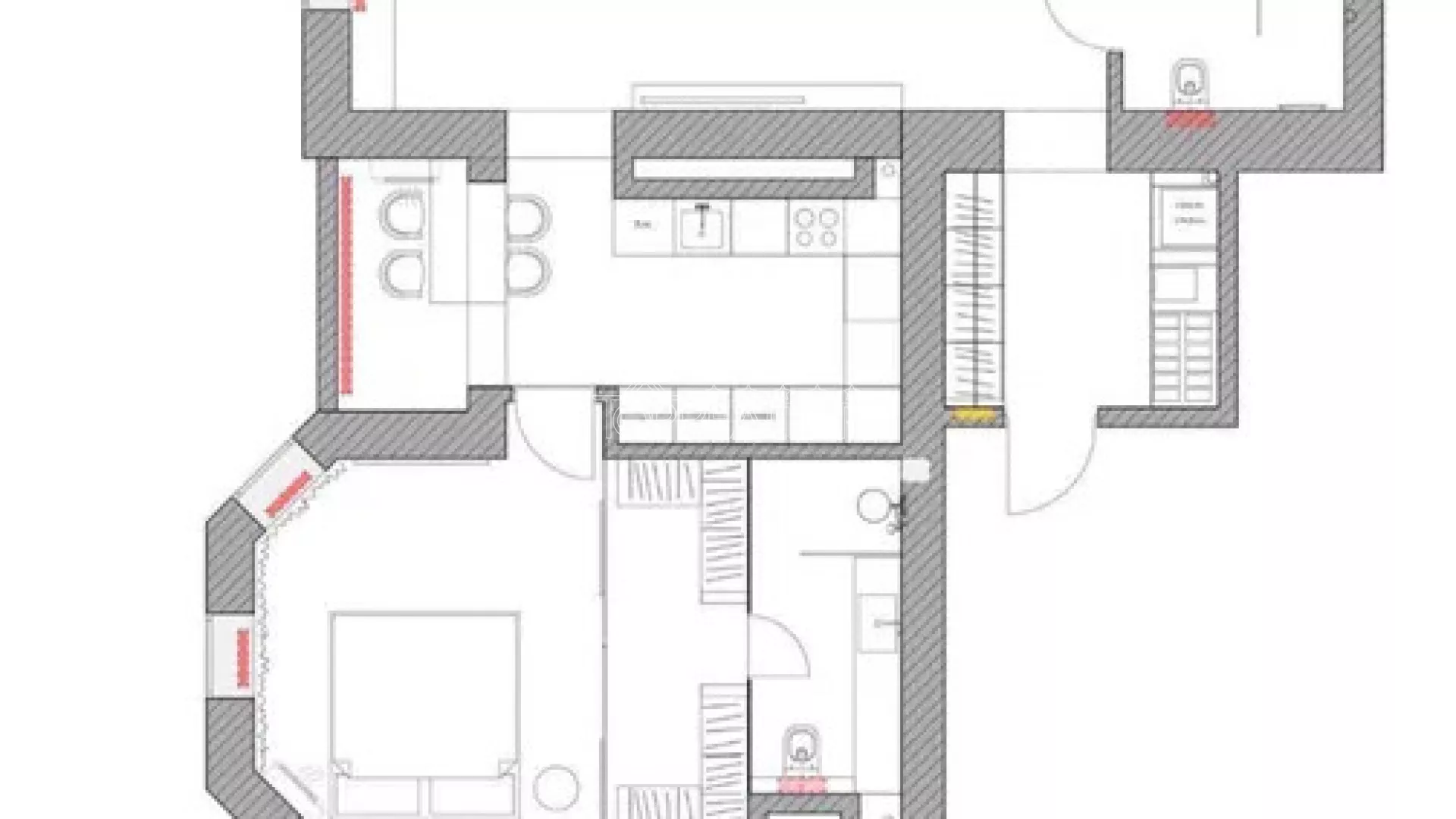
Представлена ексклюзивна, видова квартира з авторським дизайном, що займає площу 115 квадратних метрів. Розташована у житловому комплексі Сокільники на дев'ятому поверсі шістнадцятиповерхової цегляної будівлі. Має панорамний вид на ліс, вулицю Балакірєва, а також на територію школи Бойка. Житловий простір включає простору вітальню, кухню, майстер-спальню з гардеробною та власним санвузлом, дитячу кімнату (другу спальню), другий санвузол, комору з системою водопідготовки та простором для зберігання. Здійснено високоякісний ремонт згідно з оригінальним дизайнерським проектом. Застосовано фільтрацію води на вході, що сприяє збереженню чистоти та довговічності сантехнічних приладів. В інтер'єрі використані матеріали іспанського та італійського керамограніту, а в спальнях встановлена топова серія ламінату виробництва Quick Step. Проведена шумоізоляція стель і стін, на стінах застосована декоративна штукатурка, а всі поверхні покриті фарбою Fluger, що миється. У кожній кімнаті встановлена акустична система, передбачені зони з електричними теплими підлогами, вбудовані змішувачі, сантехніка німецького виробництва, двері прихованого монтажу, а також оздоблення стін матеріалом шпонованим і кам'яним шпоном. В інтер'єрі переважає скло, включаючи скляні розсувні перегородки. Для м'яких меблів використано преміальні матеріали. Квартира обладнана двома лоджіями з панорамним склінням, а всі вікна виконані в чорному кольорі, як і радіатори фірми Purmo з Фінляндії. Серед технічних характеристик: телевізори Samsung з діагоналями 65 і 50 дюймів, пральна та сушильна машина AEG, бойлер об'ємом 150 літрів від Drazice, система пом'якшення води Ecosoft, система зворотного осмосу. Кухонна техніка представлена моделями Electrolux із преміальних серій, включаючи духовку з функцією піролізу та термозондом, індукційну варильну поверхню, мікрохвильову піч, холодильник із нульовою зоною та посудомийну машину. Кондиціонери, що відповідають дизайну квартири, виконані у чорному кольорі. Район розташування квартири, Сокільники, відомий своєю центральною локацією та зеленою інфраструктурою. В безпосередній близькості знаходяться школа Бойка, дитячий садок, спортивний клуб ТЕТРА, парк Горького, зупинки громадського транспорту, станція метро 23 серпня, Ботанічний сад та університет. Даний житловий комплекс призначений для активних, сучасних та амбітних людей, які стежать за часом. Для отримання додаткової інформації та запису на перегляд прохання зв'язатися із Сергієм у будь-який зручний час.
Читати далі
Заявка
Підбір об'єкта
Договір на обслуговування
Перегляд об'єкта
Перевірка документів
Оформлення попереднього договору
Підготовка документів до угоди
Оформлення купівлі-продажу об'єкта