Продам 2-ком. кв. на Новых Домах .Коммунальный рынок. єВідновлення
Квартира укомплектована меблями та технікою
Поруч вся необхідна інфраструктура
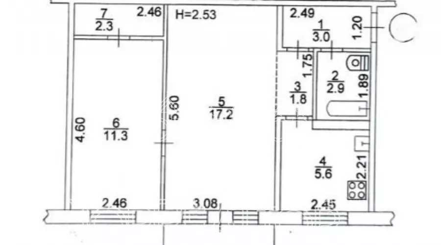
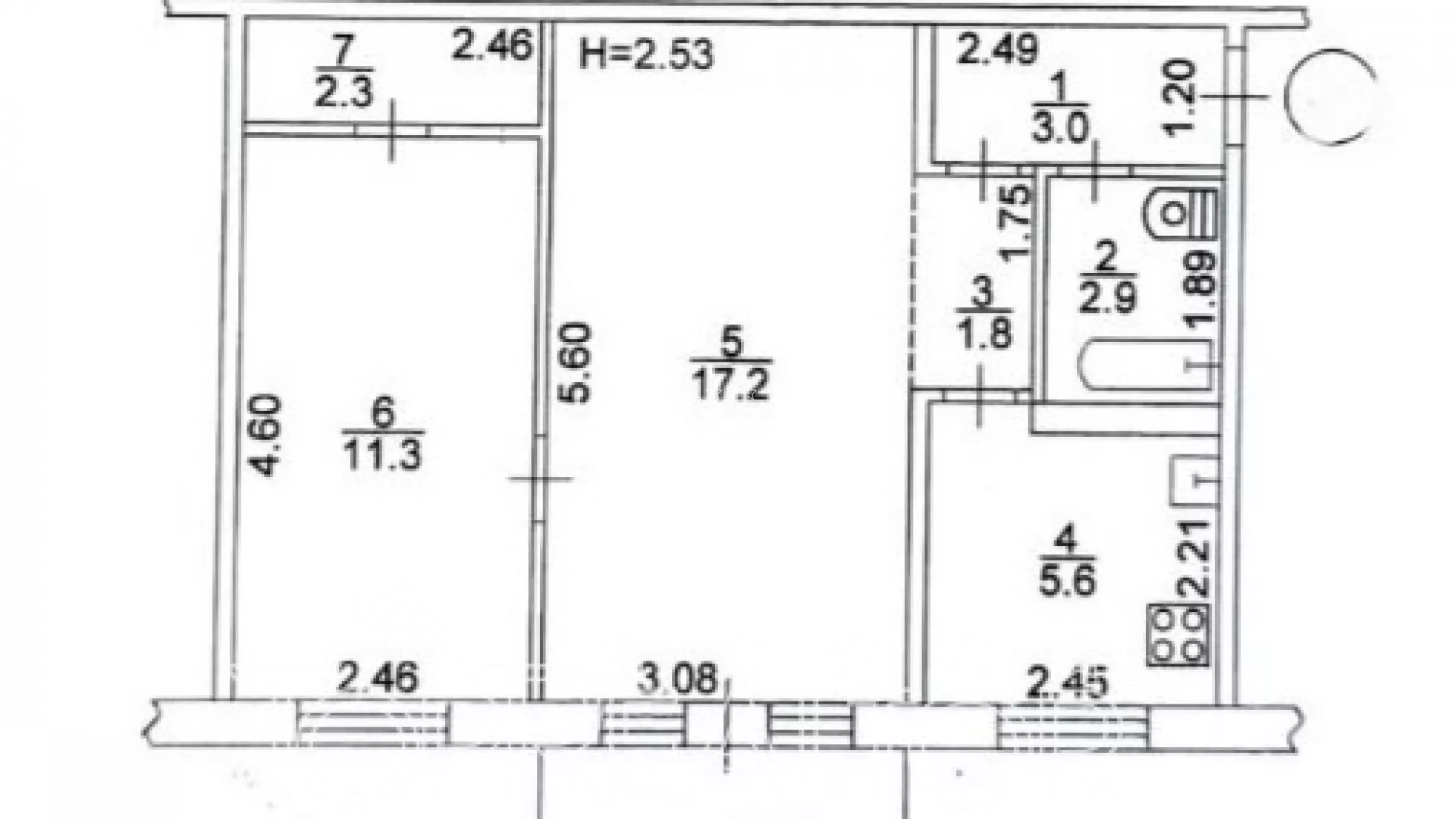
Загальна площа 44м2
Код об'єкта 30874
Рады сотрудничеству с агентствами недвижимости, которые входят в состав Союза агентств недвижимости Харькова, Харьковского клуба риэлторов и АСНУ. Не сотрудничаем с чёрными риэлторами и с китами. Продаётся 2-комнатная квартира на Новых Домах, Садовый проезд, дом 6.Коммунальный рынок. В квартире выполнен ремонт МПО, трубы поменяны. Укомплектована мебелью и техникой. Теплая, не угловая, очень светлая. Этаж: 2 этажность: 5. Общая площадь: 44 кв. м, площадь кухни:7 кв. м. Рядом вся необходимая инфраструктура, хорошая транспортная развязка, рядом находится супермаркети АТБ, Сильпо, Посад, банки. Рядом есть школы и детский сад. Звоните прямо сейчас! Организуем показ квартиры в удобное для Вас время. єВідновлення
Читати далі
Заявка
Підбір об'єкта
Договір на обслуговування
Перегляд об'єкта
Перевірка документів
Оформлення попереднього договору
Підготовка документів до угоди
Оформлення купівлі-продажу об'єкта