
Продам 2-кімнатну квартиру
У секції, що будується
ЖК Павловський квартал
Загальна площа 76м2
Код об'єкта 30463
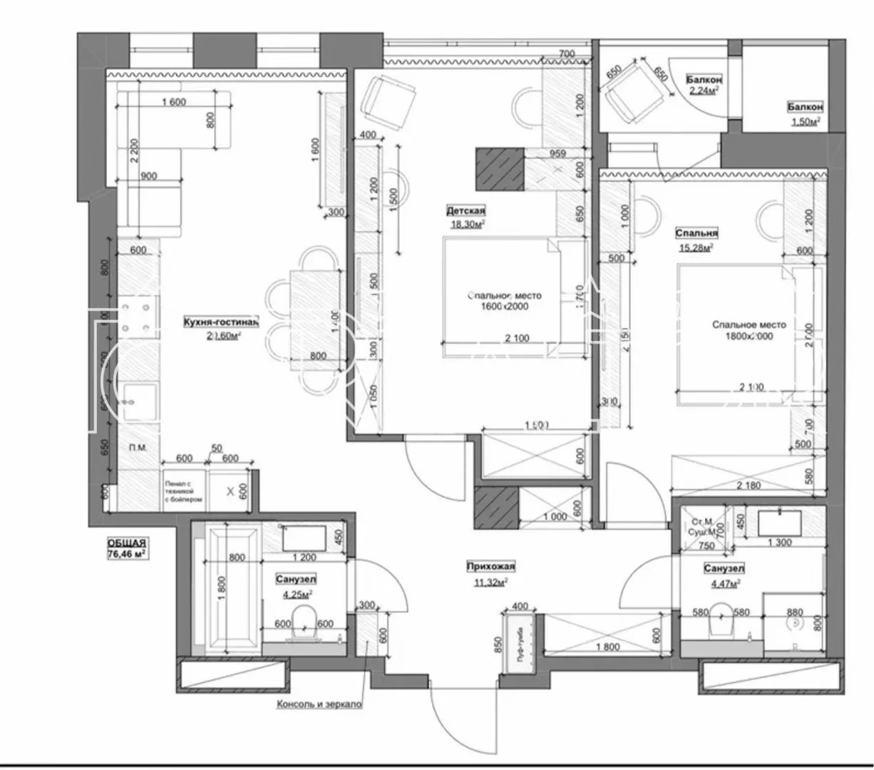
Продаж 2-кімнатної квартири в секції, що будується, житловому комплексі бізнес-класу Павлівський квартал, вул. Клочківська, 117 біля метро Наукова. Житловий комплекс розташований у районі, наближеному до центру. Біля будинку зупинки транспорту, через дорогу-супермаркет Восторг, Клас, Зростання, АТБ, фітнес-клуб YOD, школи, дитсадки, поліклініка, річка. Забудовник Житлобуд-2, Секція 7. Продаж по переуступці. Розширений дизайн проект у подарунок. Стіни: газобетон, мінераловатний утеплювач, штукатурка. Загальна площа 74 кв. м: кухня-студія 21 кв. м, 2 кімнати 16 та 18 кв. м, передпокій 11 кв. м, лоджія 6 кв. м, 2 санвузли по 4 кв. м. Квартира у будівельному стані. Встановлено вікна, металеві вхідні двері, горизонтальне розведення опалення по квартирі, що дозволяє встановити індивідуальний лічильник тепла. У під'їзді просторий хол, домофон, цілодобовий консьєрж-сервіс. Закритий двір, відеоспостереження, підземний дворівневий паркінг, наземне паркування, зони відпочинку, дитячі та спортивні майданчики.
Читати далі
Тарифи на централізоване водопостачання та водовідведення :
Водопостачання - 16,032 грн/м3
Водовідведення - 8,484 грн/м3
Електроенергія:
Фіксована ціна на електроенергію незалежно від обсягу споживання - день - 4,32 грн/кВт/год, ніч - 2,16 грн/кВт
Тарифи на централізоване водопостачання та водовідведення :
Водопостачання - 16,032 грн/м3
Водовідведення - 8,484 грн/м3
Електроенергія:
Фіксована ціна на електроенергію незалежно від обсягу споживання - день - 4,32 грн/кВт/год, ніч - 2,16 грн/кВт

Заявка
Підбір об'єкта
Договір на обслуговування
Перегляд об'єкта
Перевірка документів
Оформлення попереднього договору
Підготовка документів до угоди
Оформлення купівлі-продажу об'єкта