3-пов. будівля поряд з метро Ярослава Мудрого
Спроектований під медичний центр
Заведені всі міські комунікації
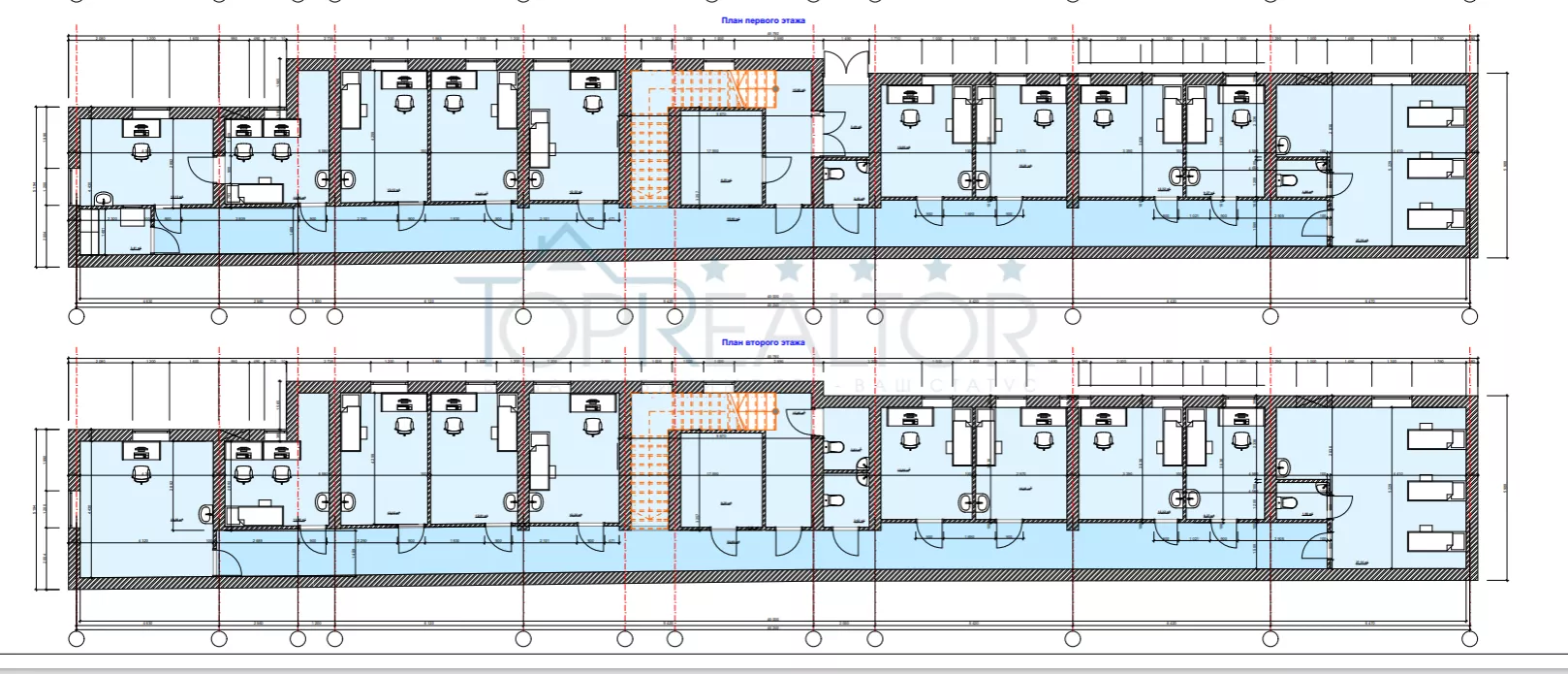
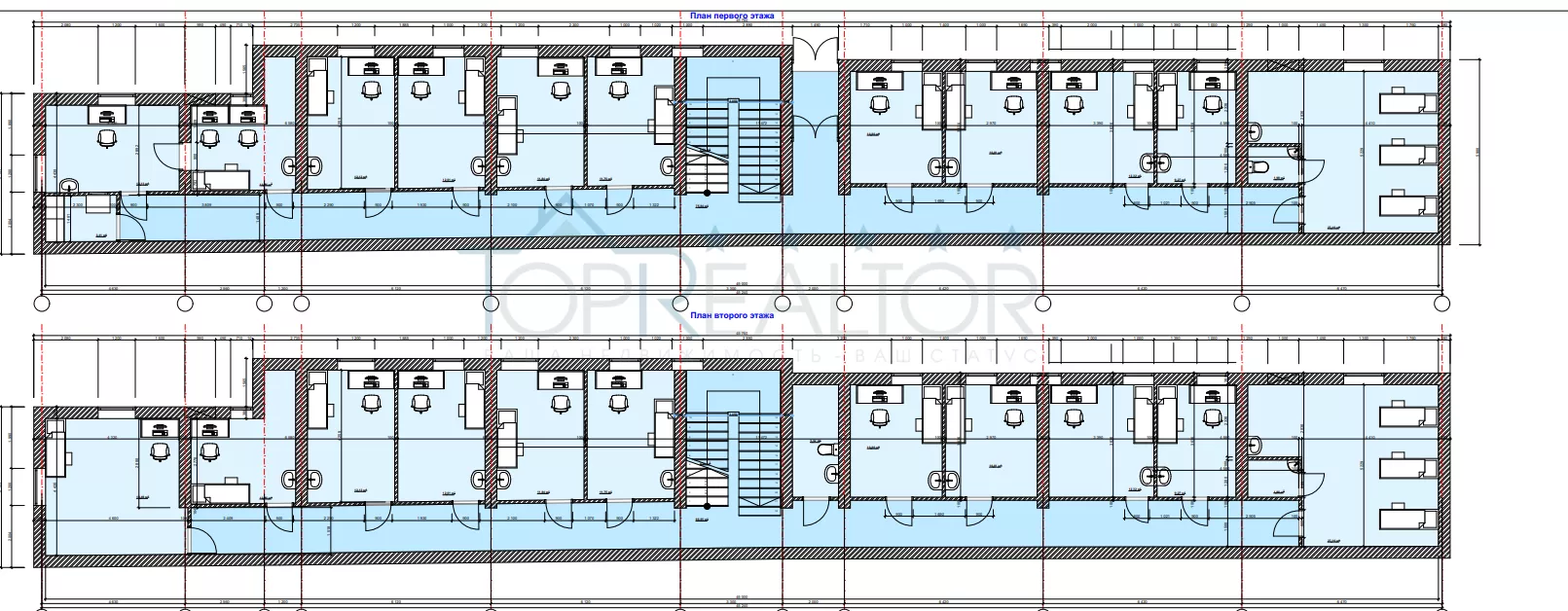
Загальна площа 770м2
Код об'єкта 30736
Продаж нового будинку, який спроєктовано під розміщення медичного центру на вул. Гуданова у безпосередній близькості від 30 лікарні та існуючих медичних центрів. Загальна площа 770 кв.м., усередині спроектовано кабінетну систему, на кожному поверсі необхідна кількість санвузлів, технічних приміщень та місць загального користування. У будівлю заведено всі міські комунікації, автономне опалення від електричного котла, потужність електричного введення 50 кВт.
Читати далі
Тарифи на централізоване водопостачання та водовідведення:
Водопостачання - 39 грн/м3
Водовідведення – 18,4==792 грн/м3
АВТОНОМНЕ ЕЛЕКТРИЧНЕ ОПАЛЕННЯ]
Тарифи на централізоване водопостачання та водовідведення:
Водопостачання - 39 грн/м3
Водовідведення – 18,4==792 грн/м3
АВТОНОМНЕ ЕЛЕКТРИЧНЕ ОПАЛЕННЯ

Заявка
Підбір об'єкта
Договір на обслуговування
Перегляд об'єкта
Перевірка документів
Оформлення попереднього договору
Підготовка документів до угоди
Оформлення купівлі-продажу об'єкта