
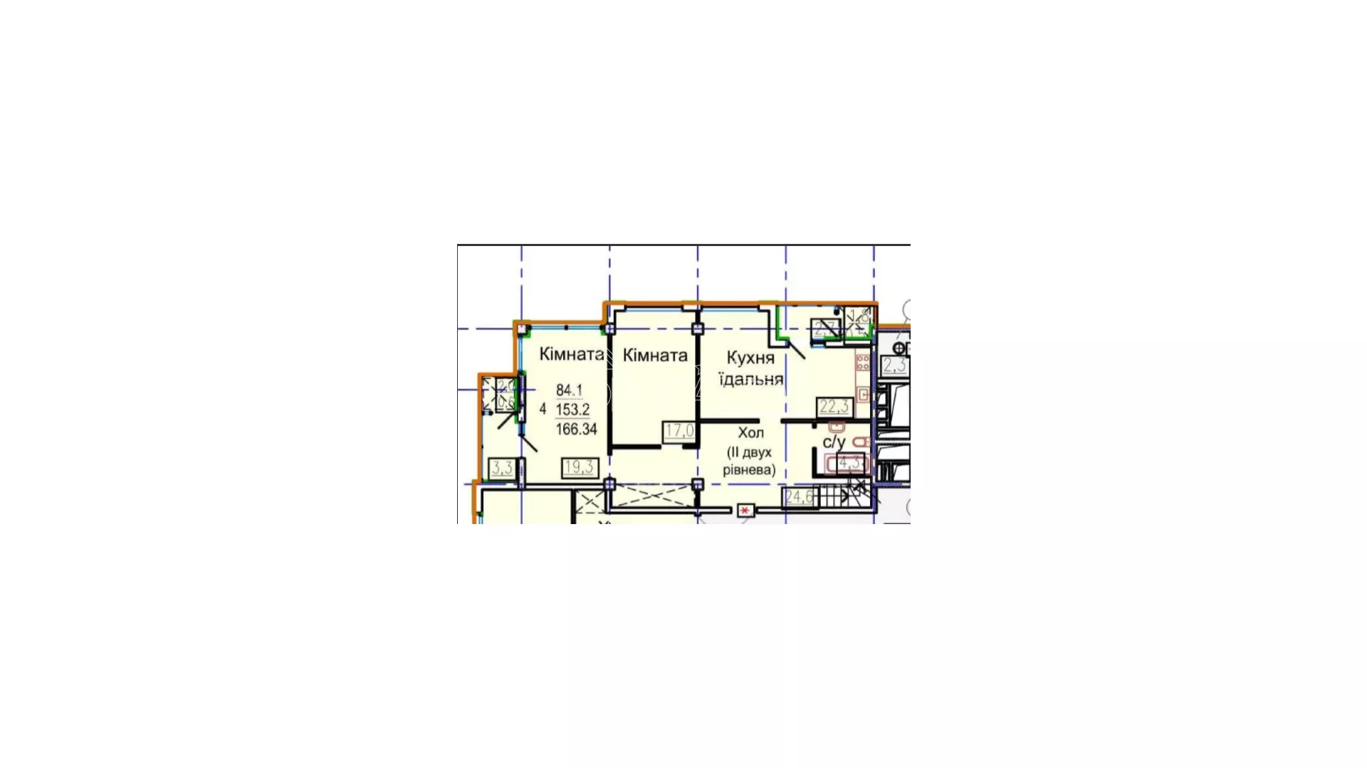
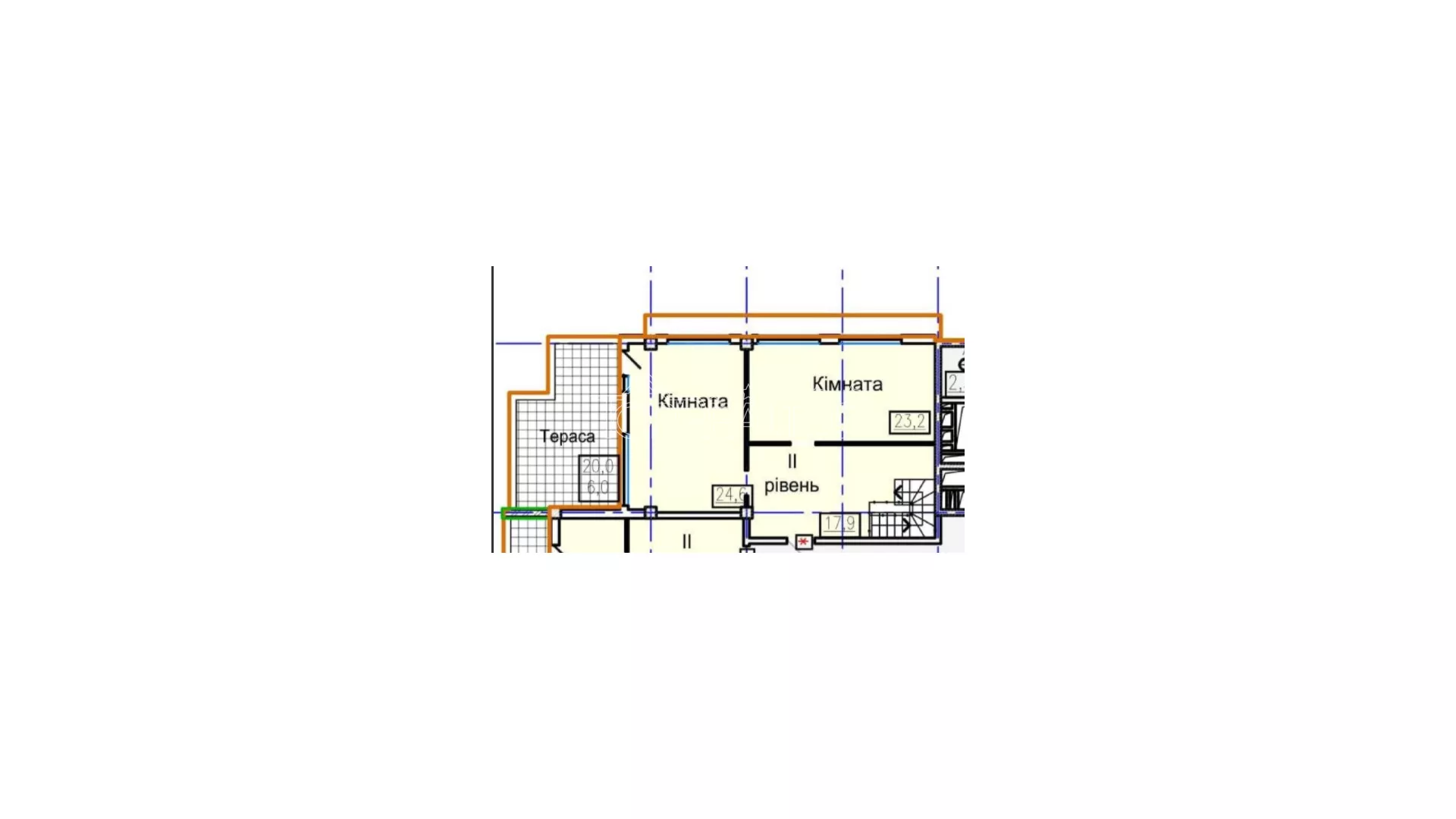
4-кімнатна дворівнева квартира в ЖК Авіаційна
Будівельний стан
Квартира з терасою
Загальна площа 164м2
Код об'єкта 20077
ЖК Авиационный дом бизнес-класса, расположен на ул. Авиационной, район Шатиловка, напротив парка Горького. Состоит из двух многоэтажных домов, переменной этажности. 4-х комнатная квартира в два яруса. Площадь-167 кв.метров. Кухня-22 кв.м 2 санузла, 3 спальни. Сдача март 2022 года ЖК Авіаційний будинок бізнес-класу, що розташований на вул. Авіаційної, район Шатилівка, навпроти парку Горького. Складається із двох багатоповерхових будинків, змінної поверховості. 4-х кімнатна квартира у два яруси. Площа-167 кв. Кухня-22 кв. 2 санвузли, 3 спальні. Здача березня 2022 року
Читати далі
Заявка
Підбір об'єкта
Договір на обслуговування
Перегляд об'єкта
Перевірка документів
Оформлення попереднього договору
Підготовка документів до угоди
Оформлення купівлі-продажу об'єкта