Будинок в селищі Лісне
Готовий дизайнерський проект
10 хв. до Центрального парку
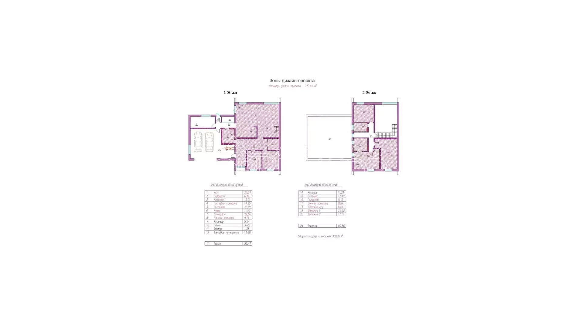
Загальна площа 310м2
Код об'єкта 30390
Продається будинок в селищі Лісне. Готовий дизайнерський проект, закуплена сантехніка, плитка, двері, система опалення з теплою підлогою та стінами. 10 хвилин до Центрального Парку (Горького). Детальна спеціфікація - по запиту.
Читати далі
Заявка
Підбір об'єкта
Договір на обслуговування
Перегляд об'єкта
Перевірка документів
Оформлення попереднього договору
Підготовка документів до угоди
Оформлення купівлі-продажу об'єкта