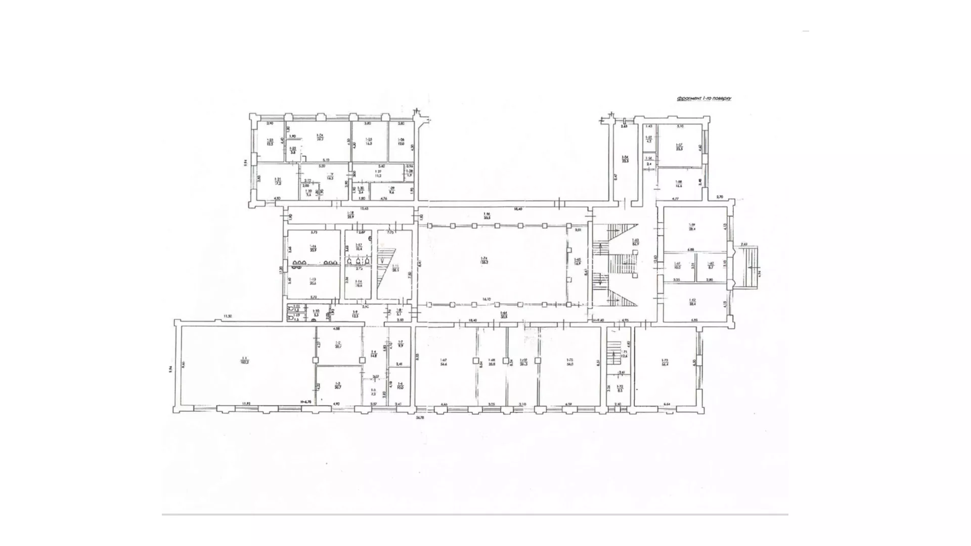
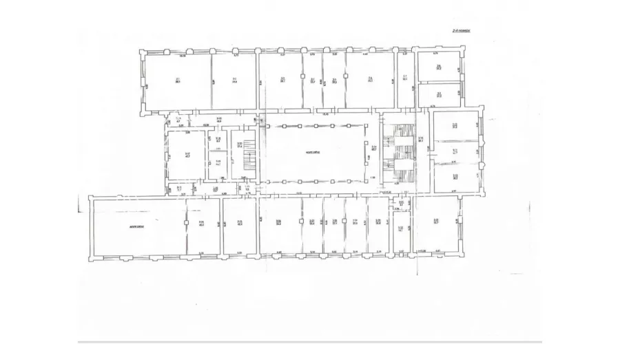
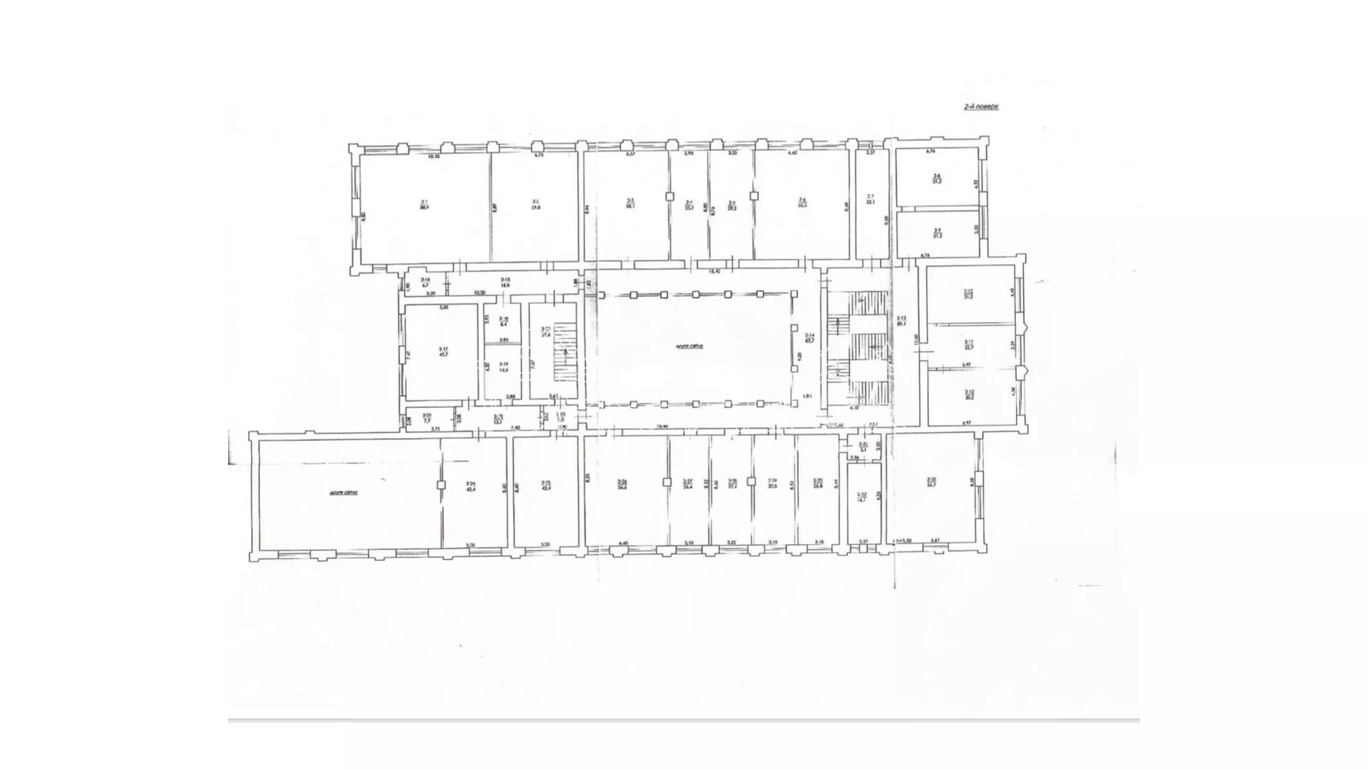
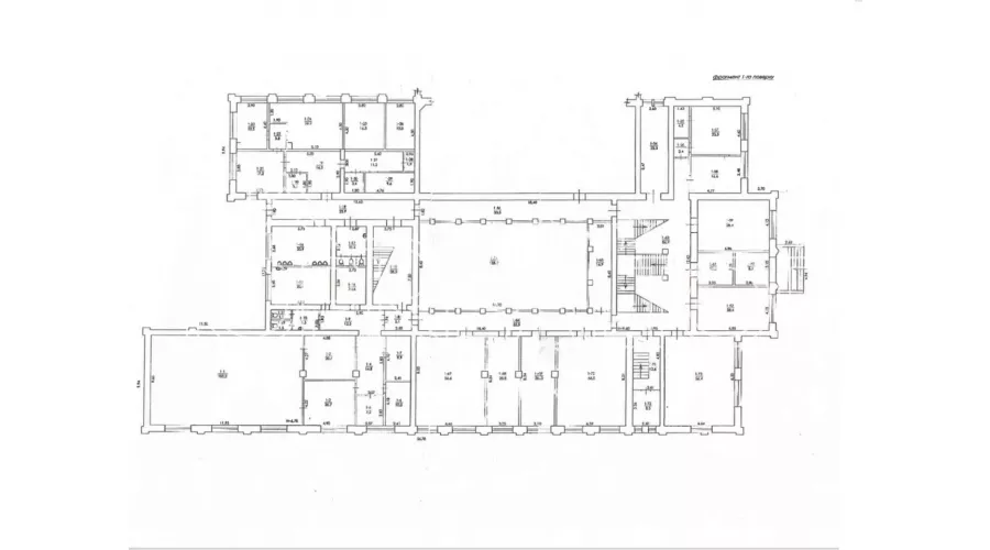
Окремо стояча будівля на Гагаріна
Земля в оренді
Все приміщення здано в оренду
Загальна площа 3000м2
Код об'єкта 19327
Продаж окремої будівлі, загальною площею 3000 кв.м, біля метро пр. Гагаріна. Земля в оренді до 2029 року, 41 сотка. Все приміщення здане в оренду.
Читати далі
Тарифи на централізоване водопостачання та водовідведення:
Водопостачання - 39 грн/м3
Водовідведення – 18,4==792 грн/м3
АВТОНОМНЕ ОПАЛЕННЯ]
Тарифи на централізоване водопостачання та водовідведення:
Водопостачання - 39 грн/м3
Водовідведення – 18,4==792 грн/м3
АВТОНОМНЕ ОПАЛЕННЯ

Заявка
Підбір об'єкта
Договір на обслуговування
Перегляд об'єкта
Перевірка документів
Оформлення попереднього договору
Підготовка документів до угоди
Оформлення купівлі-продажу об'єкта