Продаж комерційного приміщення на 1-му поверсі по пр-ту Науки, 22
Вхід окремий, червона лінія, додатково є вихід у двір
Зроблено офісний ремонт
Загальна площа 453м2
Код об'єкта 31089
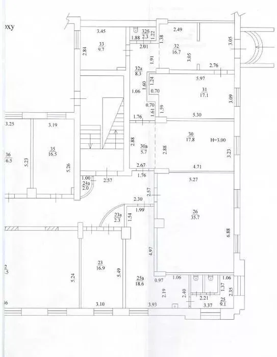
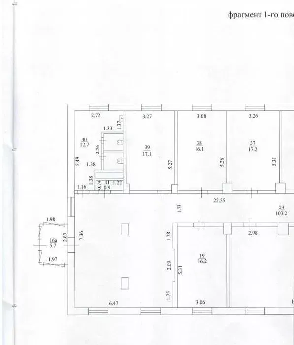
Продаж комерційного приміщення за адресою проспект Науки 22 (перехрестя з вул. Ляпунова). Вхід окремий, червона лінія, додатково є вихід у двір. Зроблено офісний ремонт, 19 кабінетів, 3 санвузли, використання приміщення передбачає: під офіс, представництво, навчальні курси, інтернет магазини та чисте невелике виробництво, медична, косметологічна клініка, садок, школа. Загальна площа 453 метри, Відмінна інвестиційна пропозиція, на даний момент є орендарі.
Читати далі
Тарифи на централізоване водопостачання та водовідведення:
Водопостачання - 39 грн/м3
Водовідведення – 18,4==792 грн/м3
ЦЕНТРАЛЬНЕ ОПАЛЕННЯ, ЯКЩО КП «Харківські теплові мережі»:
Абонплата 16.62 грн./міс.
Централізоване опалення без приладів обліку теплової енергії 3888,50 грн/Гкал
Обслуговування ВБС 41.72 грн/міс]
Тарифи на централізоване водопостачання та водовідведення:
Водопостачання - 39 грн/м3
Водовідведення – 18,4==792 грн/м3
ЦЕНТРАЛЬНЕ ОПАЛЕННЯ, ЯКЩО КП «Харківські теплові мережі»:
Абонплата 16.62 грн./міс.
Централізоване опалення без приладів обліку теплової енергії 3888,50 грн/Гкал
Обслуговування ВБС 41.72 грн/міс

Заявка
Підбір об'єкта
Договір на обслуговування
Перегляд об'єкта
Перевірка документів
Оформлення попереднього договору
Підготовка документів до угоди
Оформлення купівлі-продажу об'єкта