Двохрівнева квартира в ЖК Павлівський квартал!
У стані будівництва
Центр міста
Загальна площа 145м2
Код об'єкта 30688
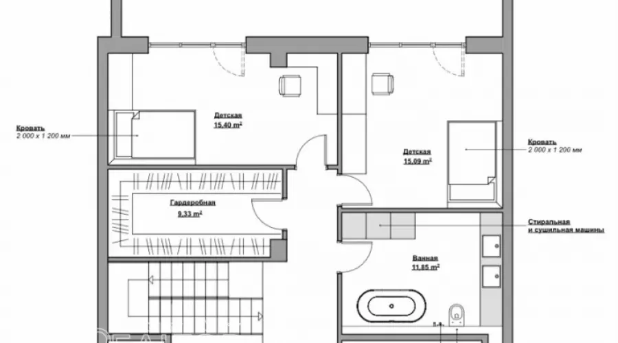
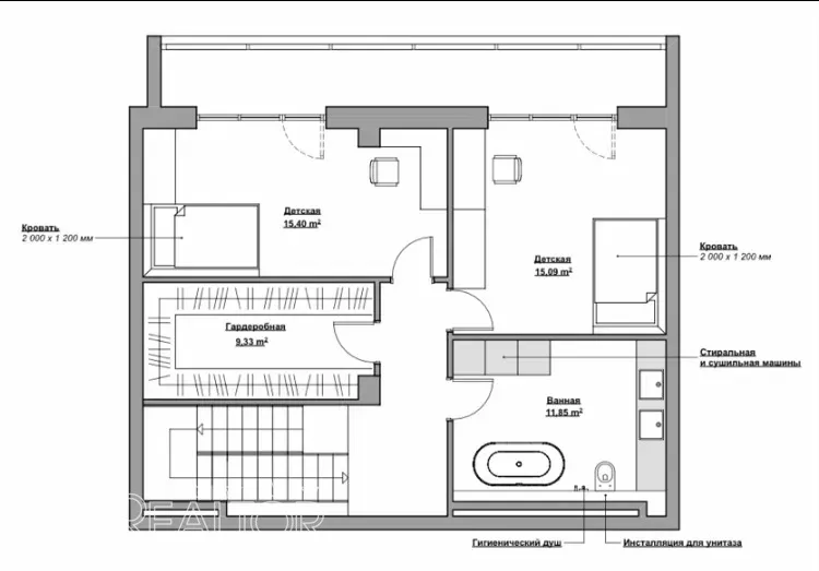
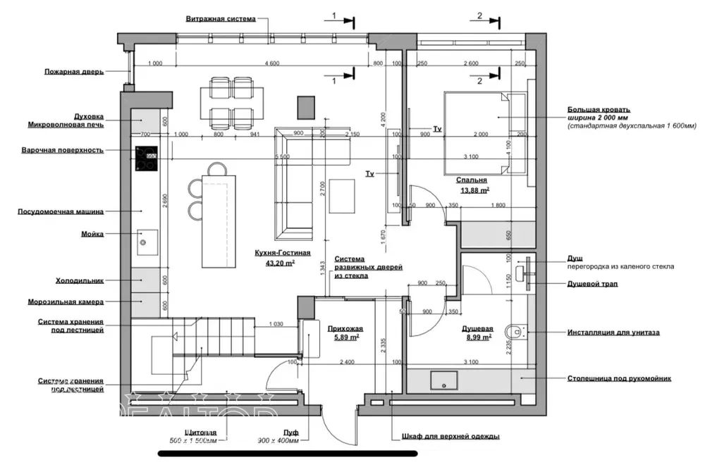
У продажу 2-х рівнева 4-х кімнатна квартира, розташована в секції №7 ЖК Павловський Квартал, вул. Сухумська, 22, центр міста (м. Наукова, м. Держпром). Квартира розташована на 19-20 поверхах, загальна площа – 145 кв.м. На етапі будівництва зроблено перепланування під комфортне проживання сім'ї з двома дітьми на 4 спальні. 1-й поверх: кухня-вітальня, спальня, санвузол; 2-й поверх: 2 дитячі спальні, вбиральня та ванна кімната. Квартира у будівельному стані. Переоформлення з переуступки.
Читати далі
Заявка
Підбір об'єкта
Договір на обслуговування
Перегляд об'єкта
Перевірка документів
Оформлення попереднього договору
Підготовка документів до угоди
Оформлення купівлі-продажу об'єкта