Продам 2-кімнатну квартиру ЖК
Квартира в будіельному стані
Загальна площа 66м2
Код об'єкта 30915
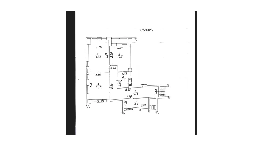
Якщо ви підшукуєте квартиру в преміальному будинку-зверніть свою увагу на новий будинок в Сокільниках! Продам 2-кімн. квартиру в ЖК Баухаус. Загальна площа 66.1 кв. За проектом передбачена зона кухні-студії та дві спальні з балконом та санвузол. Квартира у будівельному стані, вікна виходять на південь та на захід. Концепція будинку передбачає розміщення супермаркету та інших торгових приміщень на 1 поверсі, до яких можна буде спускатися ліфтом прямо з квартири. Житловий комплекс преміум класу BAUHAUS – це проект компанії «Житлобуд-3». Головною відмінністю комплексу є стилістична приналежність до архітектурної школи BAUHAUS, з чітко вираженою філософією та концепцією, що поєднує технології та мистецтво. Одне із завдань проекту — за допомогою методів художнього авангарду, зробити архітектуру функціональною, соціальною і відповідною життєвим процесам суспільства, що швидко змінюється. BAUHAUS передбачає використання якісних матеріалів та простоту форм для створення ідеального простору для життя. Тут все продумано для вашого комфорту, в безпосередній близькості розташовані супермаркет, кафе, салон краси, дитяче міні-містечко, мультифункціональний спортивний майданчик, індивідуальний дворівневий паркінг, гостьовий паркінг на вулиці, стилобат, консьєрж сервіс. Будівництво ЖК BAUHAUS ведеться з використанням найсучасніших технологій та матеріалів, що забезпечують енергоефективність, екологічність та функціональність життєвого простору. Будинок побудований за монолітно-каркасною технологією будівництва, стіни з екологічно чистого матеріалу – керамоблок 250 мм, утеплення з мінеральної базальтової вати – 100 мм. Будинок укомплектований системою «розумний будинок», установками фільтрації води та сучасними малошумними ліфтами світового виробника. Квартири мають у всіх кімнатах металопластикові панорамні вікна, а на лоджії застосовано алюмінієвий віконний профіль KMD. Будинок зданий. Квартира продається за переуступкою. Це ваш шанс придбати пентхаус за найдемократичнішою ціною! Если вы подыскиваете квартиру в премиальном доме – обратите свое внимание на новый дом в Сокольниках! Продам 2-комн. квартиру в ЖК Баухаус. Общая площадь 66.1 кв. По проекту предусмотрена зона кухни-студии и две спальни с балконом и санузел. Квартира в строительном состоянии, окна выходят на юг и запад. Концепция дома предполагает размещение супермаркета и других торговых помещений на 1 этаже, в которые можно будет спускаться лифтом прямо из квартиры. Жилой комплекс премиум класса BAUHAUS – это проект компании «Жилстрой-3». Главное отличие комплекса – стилистическая принадлежность к архитектурной школе BAUHAUS, с четко выраженной философией и концепцией, сочетающей технологии и искусство. Одна из задач проекта — с помощью методов художественного авангарда, сделать архитектуру функциональной, социальной и соответствующей жизненным процессам быстро меняющегося общества. BAUHAUS подразумевает использование качественных материалов и простоту форм для создания идеального пространства для жизни. Здесь все продумано для вашего комфорта, в непосредственной близости расположены супермаркет, кафе, салон красоты, детский мини-городок, мультифункциональная спортивная площадка, индивидуальный двухуровневый паркинг, гостевой паркинг на улице, стилобат, консьерж сервис. Строительство ЖК BAUHAUS ведется с использованием современных технологий и материалов, обеспечивающих энергоэффективность, экологичность и функциональность жизненного пространства. Дом построен по монолитно-каркасной технологии строительства, стены из экологически чистого материала – керамоблок 250 мм, утепление из минеральной базальтовой ваты – 100 мм. Дом укомплектован системой умный дом, установками фильтрации воды и современными малошумными лифтами мирового производителя. Квартиры имеют во всех комнатах металлопластиковые панорамные окна, а на лоджии использован алюминиевый оконный профиль KMD. Дом сдан. Квартира продается по переуступке. Это ваш шанс приобрести пентхаус по самой демократичной цене!
Читати далі
Заявка
Підбір об'єкта
Договір на обслуговування
Перегляд об'єкта
Перевірка документів
Оформлення попереднього договору
Підготовка документів до угоди
Оформлення купівлі-продажу об'єкта