
Квартири в клубному будинку
На території селища Форест
Преміальний будинок у лісопарку
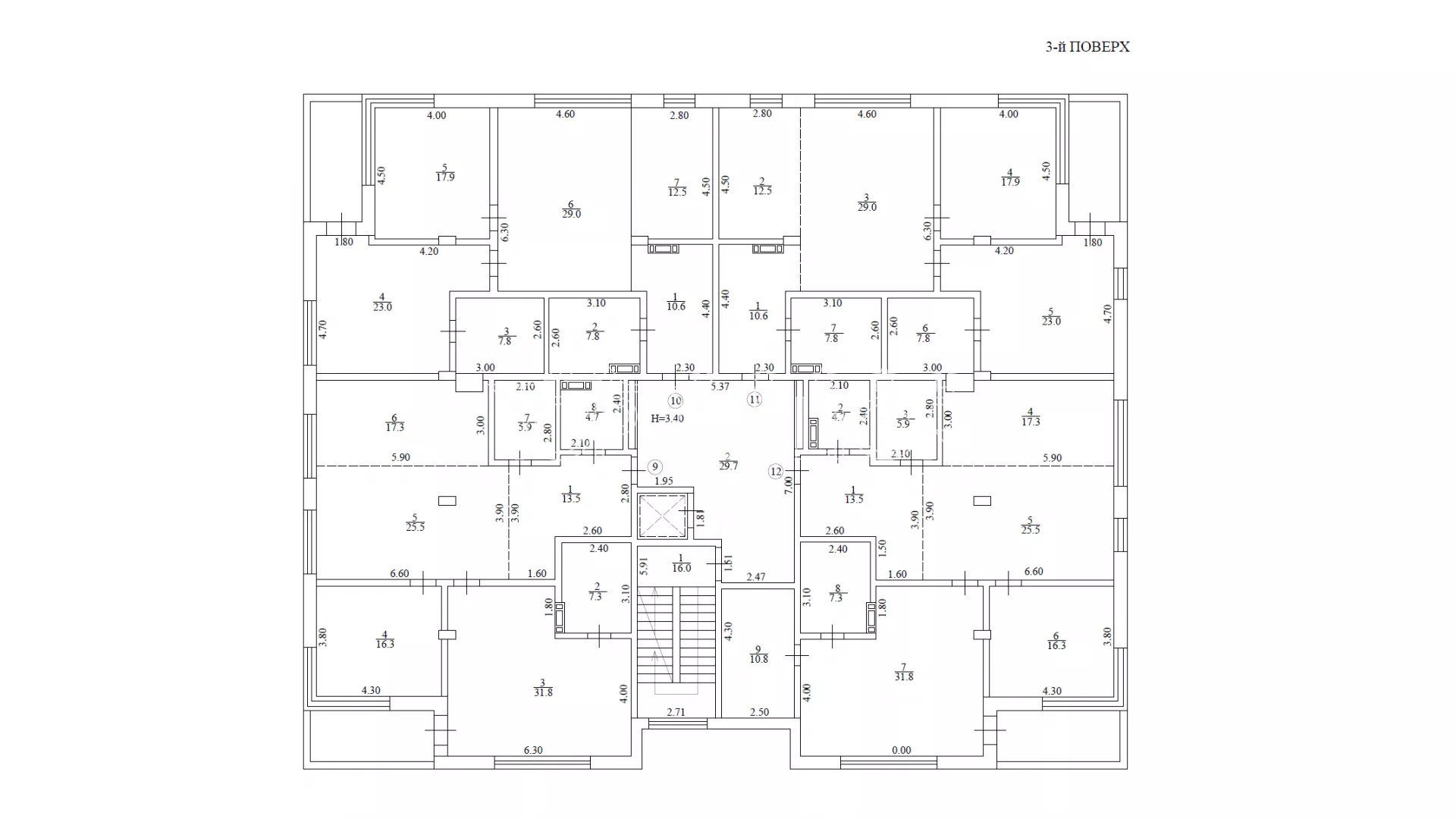
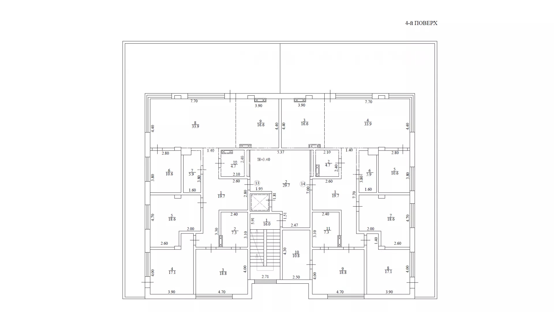
Загальна площа 121м2
Код об'єкта 30042
Старт продажів! Продаж квартири у новому житловому комплексі на території котеджного селища Форест. Загальна площа кожної квартири становить від 112 кв.м до 136 кв.м, також є можливість придбати пентхауси площею 190 кв.м. У кожній квартирі передбачено наявність вітальні-студії з виходом на лоджію або видову терасу. Поряд з будинком передбачено гостьове паркування, також є можливість придбати просторий гараж. Будинок побудований з дотриманням найсуворіших норм теплозбереження, коробка з керамічних блоків Поротерм, утеплена базальтовою ватою, встановлені панорамні вікна з розсувними алюмінієвими системами Reynaers, фасад оздоблений бельгійськими композитними панелями та клінкерною цеглою. кожна квартира має свій газовий двоконтурний котел для опалення та гарячої води. Територія котеджного селища Форест знаходиться під цілодобовою охороною, тут працює своя сервісна організація, яка стежить за прибиранням території, вивезенням сміття та обслуговуванням комунікацій. В безпосередній близькості від таунхаусів будується приватний дитячий садок і комплекс відпочинку з басейном. Котеджне селище Форест знаходиться в самому центрі лісопарку в тіні розкішних дубів, в той же час до ділового центру Харкова подати рукою: на відстані 10 хвилин їзди розташовані спорткомплекс Тетра, Сумський. Квартири в лісопарку вдало поєднують комфорт клубного будинку, тишу лісопарку та близькість до ділового центру та всієї міської інфраструктури. Першу секцію вже введено в експлуатацію. Зараз у вас з'явився унікальний шанс обрати квартиру на власний смак!
Читати далі
Заявка
Підбір об'єкта
Договір на обслуговування
Перегляд об'єкта
Перевірка документів
Оформлення попереднього договору
Підготовка документів до угоди
Оформлення купівлі-продажу об'єкта